現在、空室がございません。
TIE浜町ビルの貸事務所・賃貸オフィス情報
TIE浜町ビルの貸事務所・賃貸オフィス情報
TIE浜町ビル
- 物件番号
- 657-00203
- 所在地
- 東京都中央区日本橋浜町2-61-9
- 竣工
- 1991年5月
- 規模
- 地上8階/地下1階
- エレベーター
- セントラル
- 駐車場
- 新耐震基準
TIE浜町ビルの空室フロアリスト
現在、空室がございません。
TIE浜町ビルの物件情報
TIE浜町ビル(中央区日本橋浜町)は浜町駅徒歩2分、東日本橋駅徒歩7分、馬喰横山駅徒歩8分の賃貸オフィスです。
TIE浜町ビルのアクセス
TIE浜町ビルの募集終了区画
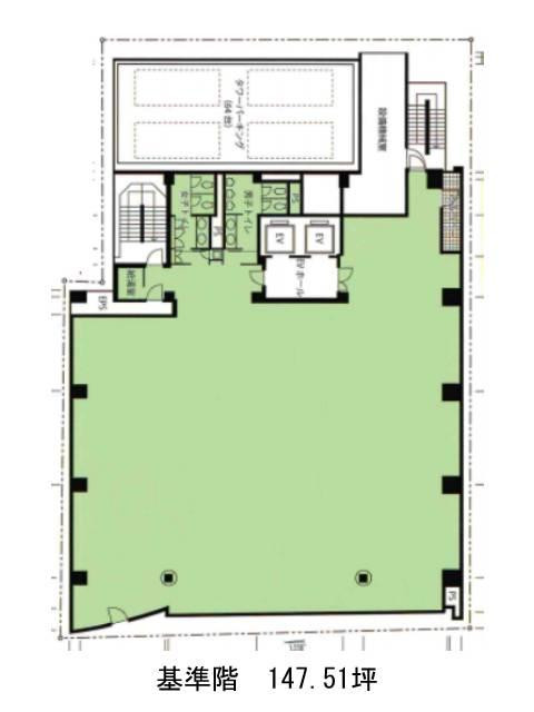
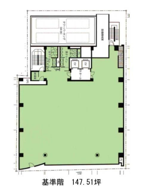
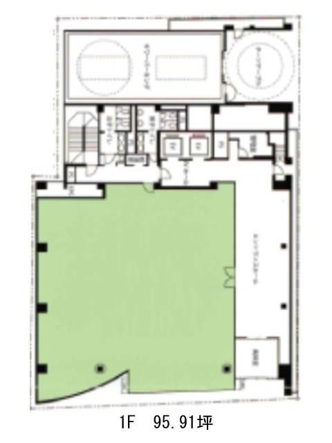
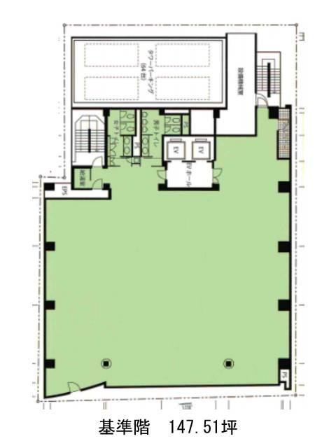
| 階数 | 面積 | 賃料+共益費 | 保証金 | 入居時期 | 更新料 | 償却費 | 礼金 | 平面図 | 詳細 |
|---|---|---|---|---|---|---|---|---|---|
| 1 | 95.91坪 | − | − | 募集終了 | − | − | − | ||
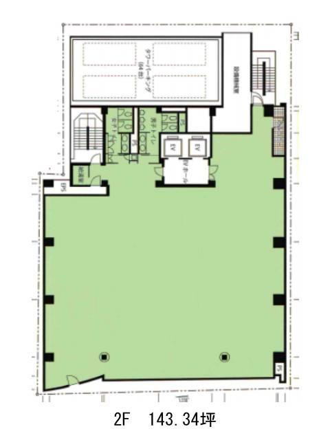
| 2 | 143.34坪 | − | − | 募集終了 | − | − | − | ||
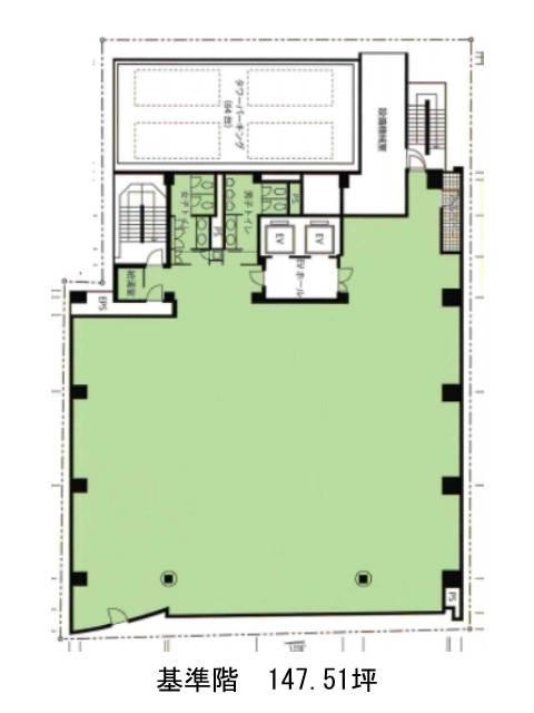
| 3 | 147.51坪 | − | − | 募集終了 | − | − | − | ||
| 4 | 147.51坪 | − | − | 募集終了 | − | − | − | ||
| 5 | 147.51坪 | − | − | 募集終了 | − | − | − | ||
| 6 | 147.51坪 | − | − | 募集終了 | − | − | − |


