現在、空室がございません。
タイヨービルの貸事務所・賃貸オフィス情報
タイヨービルの貸事務所・賃貸オフィス情報
タイヨービル
- エレベーター
- 個別空調
- 新耐震基準
タイヨービルの空室フロアリスト
現在、空室がございません。
タイヨービルの物件情報
タイヨービル(中央区日本橋富沢町)は人形町駅徒歩5分、馬喰横山駅徒歩6分、東日本橋駅徒歩6分の賃貸オフィスです。
タイヨービルのアクセス
タイヨービルの募集終了区画
| 階数 | 面積 | 賃料+共益費 | 保証金 | 入居時期 | 更新料 | 償却費 | 礼金 | 平面図 | 詳細 |
|---|---|---|---|---|---|---|---|---|---|
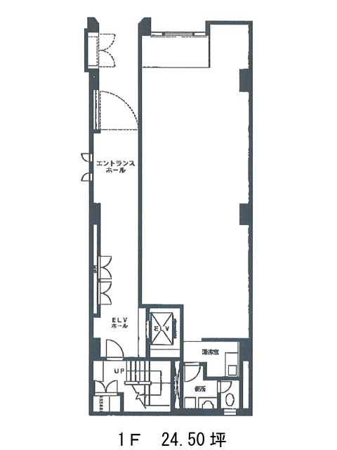
| 1 | 24.50坪 | − | − | 募集終了 | − | − | − | ||
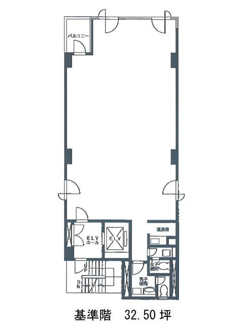
| 2 | 32.50坪 | − | − | 募集終了 | − | − | − | ||
| 3 | 32.50坪 | − | − | 募集終了 | − | − | − | ||
| 4 | 32.50坪 | − | − | 募集終了 | − | − | − | ||
| 5 | 32.50坪 | − | − | 募集終了 | − | − | − | ||
| 6 | 23.90坪 | − | − | 募集終了 | − | − | − |


