須賀ビルの貸事務所・賃貸オフィス情報
須賀ビルの貸事務所・賃貸オフィス情報
須賀ビル
- エレベーター
- 個別空調
- 旧耐震基準
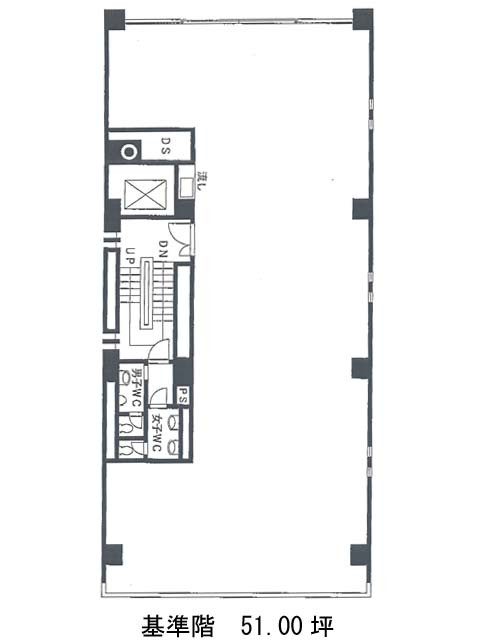
須賀ビルの空室フロアリスト
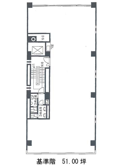
| 階数 | 面積 | 賃料+共益費 | 保証金 | 入居時期 | 更新料 | 償却費 | 礼金 | 検討 | 平面図 | 詳細 |
|---|---|---|---|---|---|---|---|---|---|---|
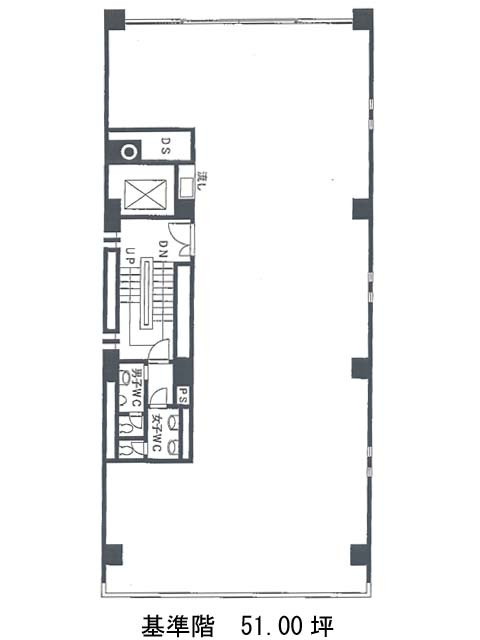
| 7 | 51.00坪 |
1,234,200円24,200円/坪
|
612万円
|
相談 | 新1ケ月 | 2ケ月 | 1ケ月 |
須賀ビルの物件情報
須賀ビル(品川区東五反田)は五反田駅徒歩2分、大崎広小路駅徒歩7分、大崎駅徒歩12分の賃貸オフィスです。
須賀ビルのアクセス
須賀ビルの募集終了区画
| 階数 | 面積 | 賃料+共益費 | 保証金 | 入居時期 | 更新料 | 償却費 | 礼金 | 平面図 | 詳細 |
|---|---|---|---|---|---|---|---|---|---|
| 地下1 | 30.00坪 | − | − | 募集終了 | − | − | − | ||
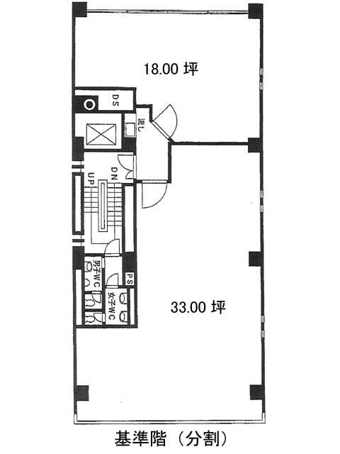
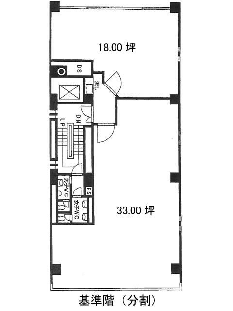
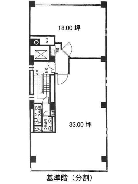
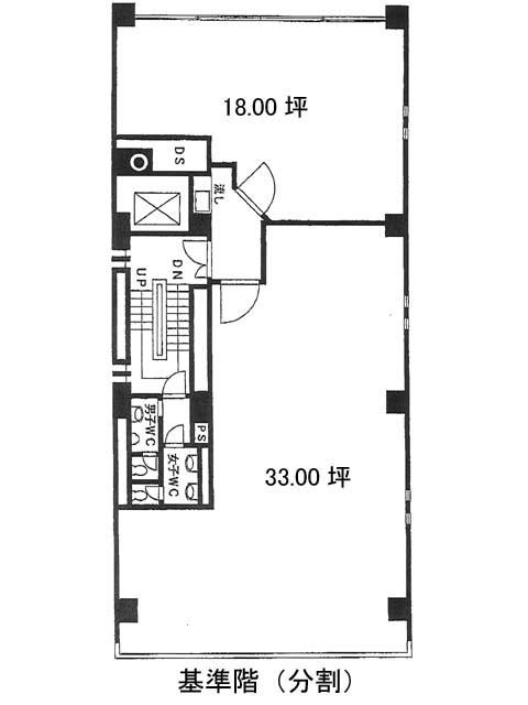
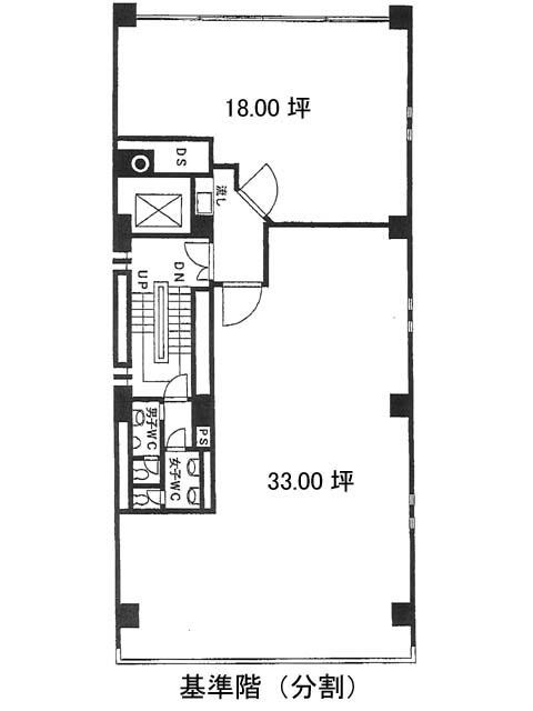
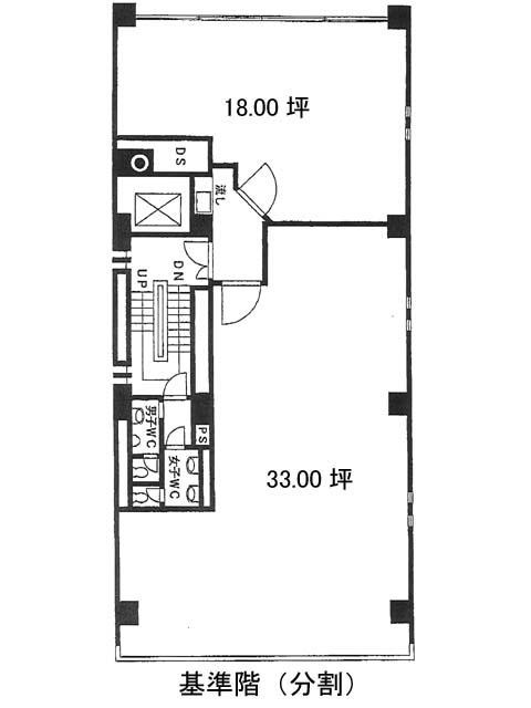
| 2 | 18.00坪 | − | − | 募集終了 | − | − | − | ||
| 2 | 33.00坪 | − | − | 募集終了 | − | − | − | ||
| 2 | 51.00坪 | − | − | 募集終了 | − | − | − | ||
| 3 | 18.00坪 | − | − | 募集終了 | − | − | − | ||
| 3 | 33.00坪 | − | − | 募集終了 | − | − | − | ||
| 4 | 51.00坪 | − | − | 募集終了 | − | − | − | ||
| 5 | 51.00坪 | − | − | 募集終了 | − | − | − | ||
| 6 | 51.00坪 | − | − | 募集終了 | − | − | − | ||
| 6 | 18.00坪 | − | − | 募集終了 | − | − | − | ||
| 6 | 33.00坪 | − | − | 募集終了 | − | − | − |


