小宮ビルの貸事務所・賃貸オフィス情報
小宮ビルの貸事務所・賃貸オフィス情報
小宮ビル
- 物件番号
- 786-00177
- 所在地
- 東京都文京区湯島1-12-4
- 竣工
- 1985年10月
- 規模
- 地上9階
- エレベーター
- 個別空調
- 新耐震基準
小宮ビルの空室フロアリスト
| 階数 | 面積 | 賃料+共益費 | 保証金 | 入居時期 | 更新料 | 償却費 | 礼金 | 検討 | 平面図 | 詳細 |
|---|---|---|---|---|---|---|---|---|---|---|
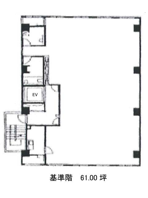
| 7 | 61.00坪 |
939,400円15,400円/坪
|
512万円
|
2026年5月上旬 | 新1ケ月 | 1ケ月 | なし |
小宮ビルの物件情報
小宮ビル(文京区湯島)は末広町駅徒歩6分、御茶ノ水駅徒歩7分、新御茶ノ水駅徒歩7分の賃貸オフィスです。
小宮ビルのアクセス
小宮ビルの条件に近い物件
小宮ビルの募集終了区画
| 階数 | 面積 | 賃料+共益費 | 保証金 | 入居時期 | 更新料 | 償却費 | 礼金 | 平面図 | 詳細 |
|---|---|---|---|---|---|---|---|---|---|
| 1 | 49.00坪 | − | − | 募集終了 | − | − | − | ||
| 2 | 58.00坪 | − | − | 募集終了 | − | − | − | ||
| 3 | 61.00坪 | − | − | 募集終了 | − | − | − | ||
| 4 | 61.00坪 | − | − | 募集終了 | − | − | − | ||
| 5 | 61.00坪 | − | − | 募集終了 | − | − | − | ||
| 6 | 61.00坪 | − | − | 募集終了 | − | − | − | ||
| 8 | 61.00坪 | − | − | 募集終了 | − | − | − |


