OPビルの貸事務所・賃貸オフィス情報
OPビルの貸事務所・賃貸オフィス情報
OPビル
- エレベーター
- 個別空調
- 駐車場
- 新耐震基準
OPビルの空室フロアリスト
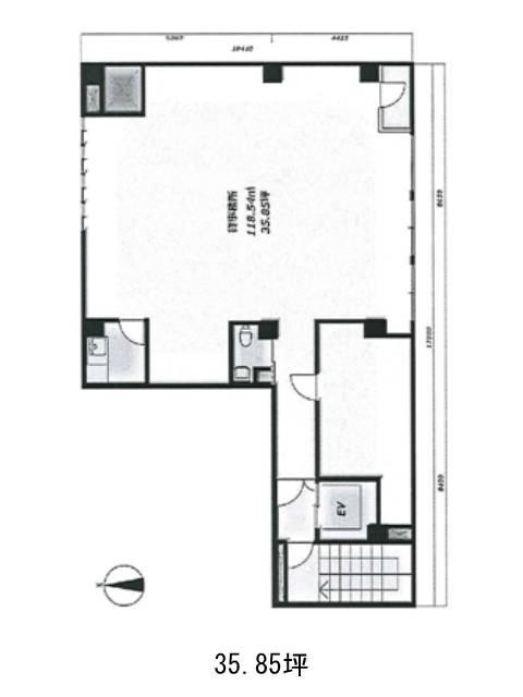
| 階数 | 面積 | 賃料+共益費 | 保証金 | 入居時期 | 更新料 | 償却費 | 礼金 | 検討 | 平面図 | 詳細 |
|---|---|---|---|---|---|---|---|---|---|---|
| 2 | 35.86坪 |
429,000円11,964円/坪
|
144万円
|
2026年7月中旬 | 新1ケ月 | 2ケ月 | 1ケ月 |
OPビルの物件情報
OPビル(墨田区両国)は両国駅徒歩6分、森下駅徒歩11分、馬喰町駅徒歩11分の賃貸オフィスです。
OPビルのアクセス
OPビルの条件に近い物件
OPビルの募集終了区画
| 階数 | 面積 | 賃料+共益費 | 保証金 | 入居時期 | 更新料 | 償却費 | 礼金 | 平面図 | 詳細 |
|---|---|---|---|---|---|---|---|---|---|
| 3 | 35.85坪 | − | − | 募集終了 | − | − | − | ||
| 4 | 37.03坪 | − | − | 募集終了 | − | − | − |


