現在、空室がございません。
E・S林ビルの貸事務所・賃貸オフィス情報
E・S林ビルの貸事務所・賃貸オフィス情報
E・S林ビル
- エレベーター
- 新耐震基準
E・S林ビルの空室フロアリスト
現在、空室がございません。
E・S林ビルの物件情報
E・S林ビル(中央区東日本橋)は馬喰町駅徒歩5分、東日本橋駅徒歩5分、馬喰横山駅徒歩6分の賃貸オフィスです。
E・S林ビルのアクセス
E・S林ビルの募集終了区画
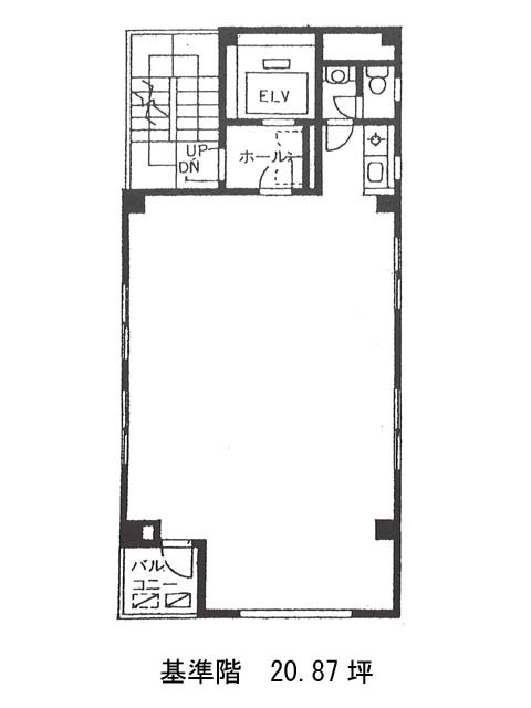
| 階数 | 面積 | 賃料+共益費 | 保証金 | 入居時期 | 更新料 | 償却費 | 礼金 | 平面図 | 詳細 |
|---|---|---|---|---|---|---|---|---|---|
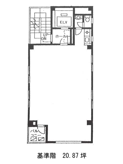
| 2 | 20.87坪 | − | − | 募集終了 | − | − | − | ||
| 3 | 20.87坪 | − | − | 募集終了 | − | − | − | ||
| 4 | 20.87坪 | − | − | 募集終了 | − | − | − | ||
| 5 | 20.87坪 | − | − | 募集終了 | − | − | − | ||
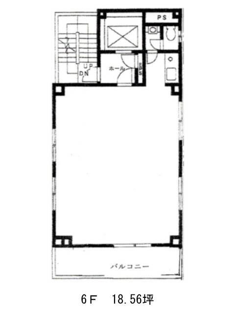
| 6 | 18.56坪 | − | − | 募集終了 | − | − | − |


