第3成島ビルの貸事務所・賃貸オフィス情報
第3成島ビルの貸事務所・賃貸オフィス情報
第3成島ビル
- 物件番号
- 642-00101
- 所在地
- 東京都中央区東日本橋2-8-11
- 竣工
- 1989年2月
- 規模
- 地上8階/地下1階
- エレベーター
- 個別空調
- 新耐震基準
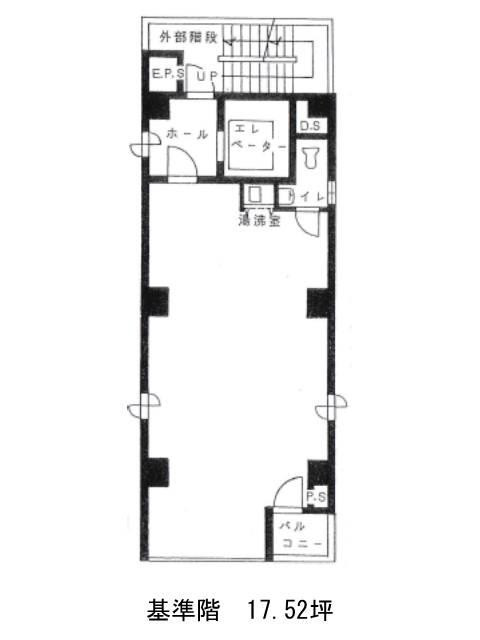
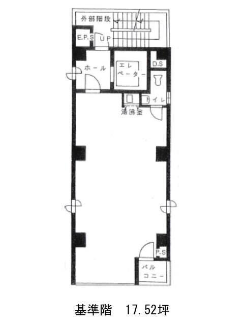
第3成島ビルの空室フロアリスト
| 階数 | 面積 | 賃料+共益費 | 保証金 | 入居時期 | 更新料 | 償却費 | 礼金 | 検討 | 平面図 | 詳細 |
|---|---|---|---|---|---|---|---|---|---|---|
| 4 | 17.52坪 |
231,264円13,200円/坪
|
140万円
|
即 | 新1ケ月 | 2ケ月 | なし |
第3成島ビルの物件情報
第3成島ビル(中央区東日本橋)は東日本橋駅徒歩3分、馬喰横山駅徒歩4分、馬喰町駅徒歩4分の賃貸オフィスです。
第3成島ビルのアクセス
第3成島ビルの条件に近い物件
第3成島ビルの募集終了区画
| 階数 | 面積 | 賃料+共益費 | 保証金 | 入居時期 | 更新料 | 償却費 | 礼金 | 平面図 | 詳細 |
|---|---|---|---|---|---|---|---|---|---|
| 地下1 | 16.06坪 | − | − | 募集終了 | − | − | − | ||
| 3 | 17.52坪 | − | − | 募集終了 | − | − | − | ||
| 5 | 17.52坪 | − | − | 募集終了 | − | − | − |


