現在、空室がございません。
東日本橋佐藤ビルの貸事務所・賃貸オフィス情報
東日本橋佐藤ビルの貸事務所・賃貸オフィス情報
東日本橋佐藤ビル
- エレベーター
- 個別空調
- 新耐震基準
東日本橋佐藤ビルの空室フロアリスト
現在、空室がございません。
東日本橋佐藤ビルの物件情報
東日本橋佐藤ビル(中央区東日本橋)は東日本橋駅徒歩3分、馬喰横山駅徒歩5分、浜町駅徒歩5分の賃貸オフィスです。
東日本橋佐藤ビルのアクセス
東日本橋佐藤ビルの募集終了区画
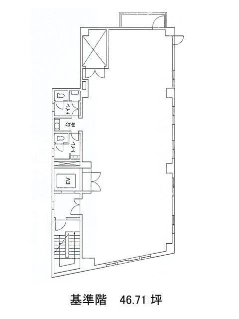
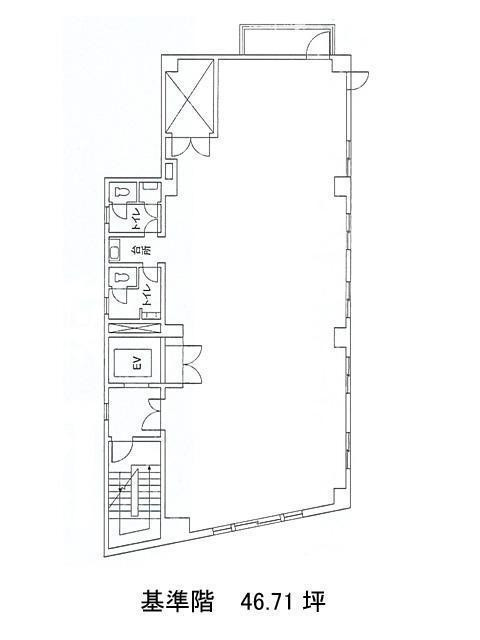
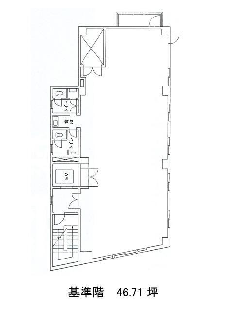
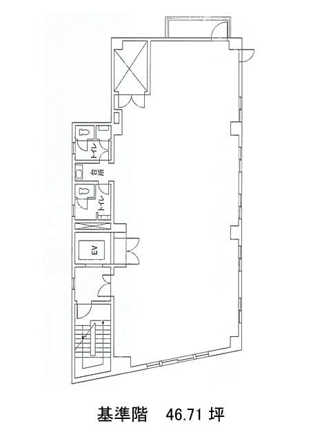
| 階数 | 面積 | 賃料+共益費 | 保証金 | 入居時期 | 更新料 | 償却費 | 礼金 | 平面図 | 詳細 |
|---|---|---|---|---|---|---|---|---|---|
| 2 | 46.71坪 | − | − | 募集終了 | − | − | − | ||
| 3 | 46.71坪 | − | − | 募集終了 | − | − | − | ||
| 4 | 46.71坪 | − | − | 募集終了 | − | − | − | ||
| 5 | 46.71坪 | − | − | 募集終了 | − | − | − | ||
| 6 | 46.71坪 | − | − | 募集終了 | − | − | − |


