Jプロ東日本橋ビルの貸事務所・賃貸オフィス情報
Jプロ東日本橋ビルの貸事務所・賃貸オフィス情報
Jプロ東日本橋ビル
- エレベーター
- 個別空調
- 駐車場
- 新耐震基準
Jプロ東日本橋ビルの空室フロアリスト
| 階数 | 面積 | 賃料+共益費 | 保証金 | 入居時期 | 更新料 | 償却費 | 礼金 | 検討 | 平面図 | 詳細 |
|---|---|---|---|---|---|---|---|---|---|---|
| 5 | 40.33坪 |
応相談応相談
|
応相談
|
2026年6月上旬 | なし | なし | なし |
Jプロ東日本橋ビルの物件情報
Jプロ東日本橋ビル(中央区東日本橋)は馬喰町駅徒歩3分、東日本橋駅徒歩4分、浅草橋駅徒歩5分の賃貸オフィスです。
Jプロ東日本橋ビルのアクセス
Jプロ東日本橋ビルの募集終了区画
| 階数 | 面積 | 賃料+共益費 | 保証金 | 入居時期 | 更新料 | 償却費 | 礼金 | 平面図 | 詳細 |
|---|---|---|---|---|---|---|---|---|---|
| 2 | 40.56坪 | − | − | 募集終了 | − | − | − | ||
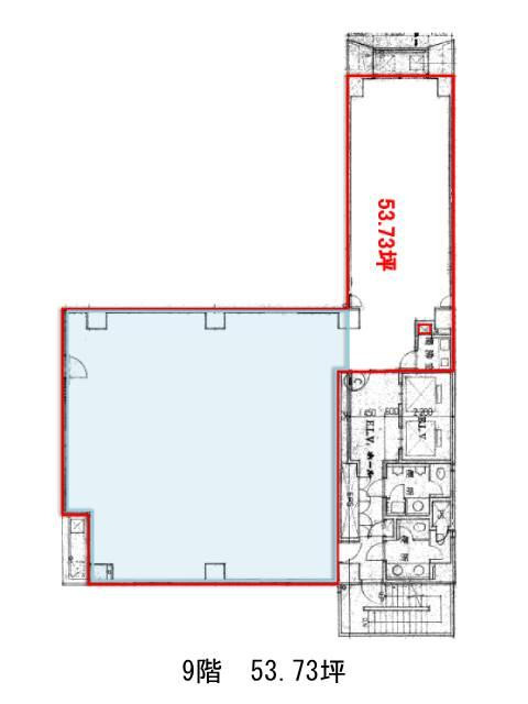
| 9 | 53.73坪 | − | − | 募集終了 | − | − | − |


