第5高野ビルの貸事務所・賃貸オフィス情報
第5高野ビルの貸事務所・賃貸オフィス情報
第5高野ビル
- エレベーター
- 個別空調
- 新耐震基準
第5高野ビルの空室フロアリスト
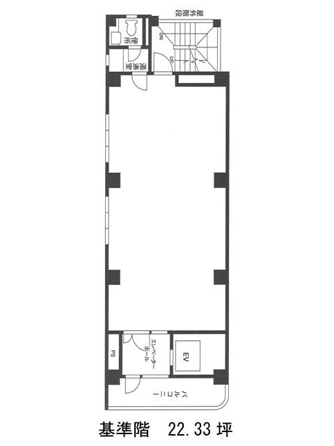
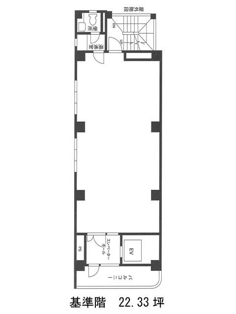
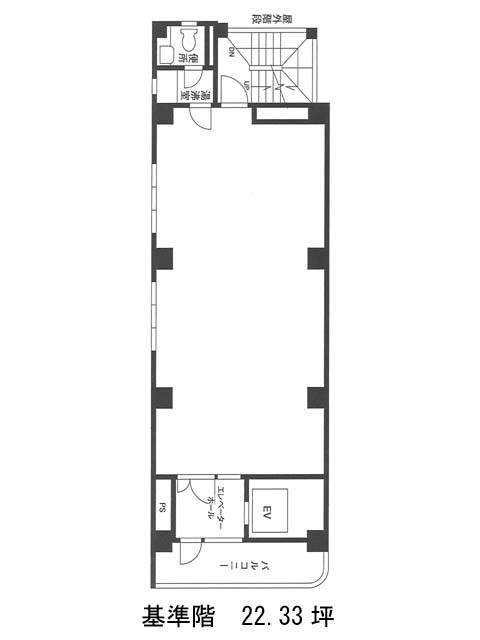
| 階数 | 面積 | 賃料+共益費 | 保証金 | 入居時期 | 更新料 | 償却費 | 礼金 | 検討 | 平面図 | 詳細 |
|---|---|---|---|---|---|---|---|---|---|---|
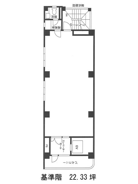
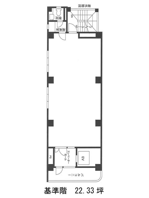
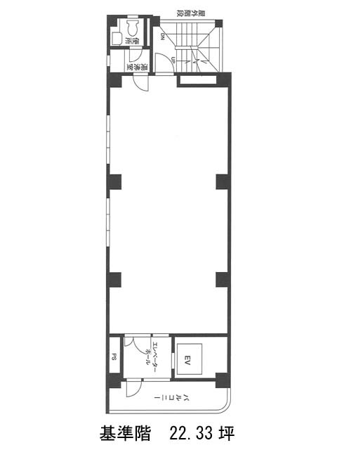
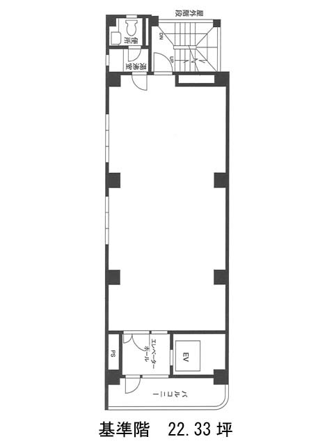
| 5 | 22.33坪 |
294,756円13,200円/坪
|
178万円
|
即 | 新1ケ月 | 2ケ月 | なし |
第5高野ビルの物件情報
第5高野ビル(中央区東日本橋)は東日本橋駅徒歩2分、馬喰横山駅徒歩3分、馬喰町駅徒歩4分の賃貸オフィスです。
第5高野ビルのアクセス
第5高野ビルの募集終了区画
| 階数 | 面積 | 賃料+共益費 | 保証金 | 入居時期 | 更新料 | 償却費 | 礼金 | 平面図 | 詳細 |
|---|---|---|---|---|---|---|---|---|---|
| 1 | 21.49坪 | − | − | 募集終了 | − | − | − | ||
| 2 | 22.33坪 | − | − | 募集終了 | − | − | − | ||
| 3 | 22.33坪 | − | − | 募集終了 | − | − | − | ||
| 4 | 22.33坪 | − | − | 募集終了 | − | − | − | ||
| 6 | 22.33坪 | − | − | 募集終了 | − | − | − | ||
| 7 | 22.33坪 | − | − | 募集終了 | − | − | − | ||
| 8 | 22.33坪 | − | − | 募集終了 | − | − | − | ||
| 9 | 22.33坪 | − | − | 募集終了 | − | − | − |


