ダイヤモンドレジデンス東日本橋第1(DR東日本橋第一)の貸事務所・賃貸オフィス情報
ダイヤモンドレジデンス東日本橋第1(DR東日本橋第一)の貸事務所・賃貸オフィス情報
ダイヤモンドレジデンス東日本橋第1(DR東日本橋第一)
- 物件番号
- 642-00098
- 所在地
- 東京都中央区東日本橋3-12-3
- 竣工
- 1984年10月
- 規模
- 地上5階/地下1階
- エレベーター
- 個別空調
- 新耐震基準
ダイヤモンドレジデンス東日本橋第1(DR東日本橋第一)の空室フロアリスト
| 階数 | 面積 | 賃料+共益費 | 保証金 | 入居時期 | 更新料 | 償却費 | 礼金 | 検討 | 平面図 | 詳細 |
|---|---|---|---|---|---|---|---|---|---|---|
| 地下1 | 15.21坪 |
297,000円19,528円/坪
|
48万円
|
相談 | 旧3ケ月 | なし | なし |
ダイヤモンドレジデンス東日本橋第1(DR東日本橋第一)の物件情報
ダイヤモンドレジデンス東日本橋第1(DR東日本橋第一)(中央区東日本橋)は東日本橋駅徒歩2分、馬喰横山駅徒歩2分、馬喰町駅徒歩3分の賃貸オフィスです。
ダイヤモンドレジデンス東日本橋第1(DR東日本橋第一)のアクセス
ダイヤモンドレジデンス東日本橋第1(DR東日本橋第一)の募集終了区画
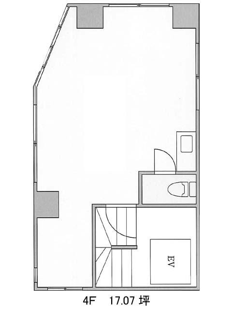
| 階数 | 面積 | 賃料+共益費 | 保証金 | 入居時期 | 更新料 | 償却費 | 礼金 | 平面図 | 詳細 |
|---|---|---|---|---|---|---|---|---|---|
| 1 | 15.28坪 | − | − | 募集終了 | − | − | − | ||
| 2 | 16.30坪 | − | − | 募集終了 | − | − | − | ||
| 3 | 16.72坪 | − | − | 募集終了 | − | − | − | ||
| 4 | 17.07坪 | − | − | 募集終了 | − | − | − |


