日本橋浜町Kビルの貸事務所・賃貸オフィス情報
日本橋浜町Kビルの貸事務所・賃貸オフィス情報
日本橋浜町Kビル
- 物件番号
- 657-00059
- 所在地
- 東京都中央区日本橋浜町2-62-6
- 竣工
- 1986年3月
- 規模
- 地上14階/地下1階
- エレベーター
- 個別空調
- 駐車場
- 新耐震基準
日本橋浜町Kビルの空室フロアリスト
| 階数 | 面積 | 賃料+共益費 | 保証金 | 入居時期 | 更新料 | 償却費 | 礼金 | 検討 | 平面図 | 詳細 |
|---|---|---|---|---|---|---|---|---|---|---|
| 9 | 152.87坪 |
応相談応相談
|
応相談
|
2026年6月上旬 | なし | なし | なし |
日本橋浜町Kビルの物件情報
日本橋浜町Kビル(中央区日本橋浜町)は浜町駅徒歩3分、東日本橋駅徒歩8分、馬喰横山駅徒歩8分の賃貸オフィスです。
日本橋浜町Kビルのアクセス
日本橋浜町Kビルの募集終了区画
| 階数 | 面積 | 賃料+共益費 | 保証金 | 入居時期 | 更新料 | 償却費 | 礼金 | 平面図 | 詳細 |
|---|---|---|---|---|---|---|---|---|---|
| 6 | 79.42坪 | − | − | 募集終了 | − | − | − | ||
| 7 | 153.55坪 | − | − | 募集終了 | − | − | − | ||
| 8 | 153.55坪 | − | − | 募集終了 | − | − | − | ||
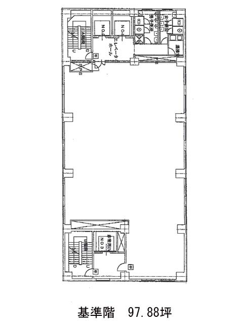
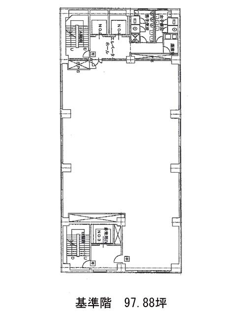
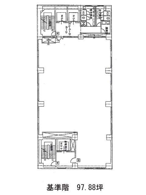
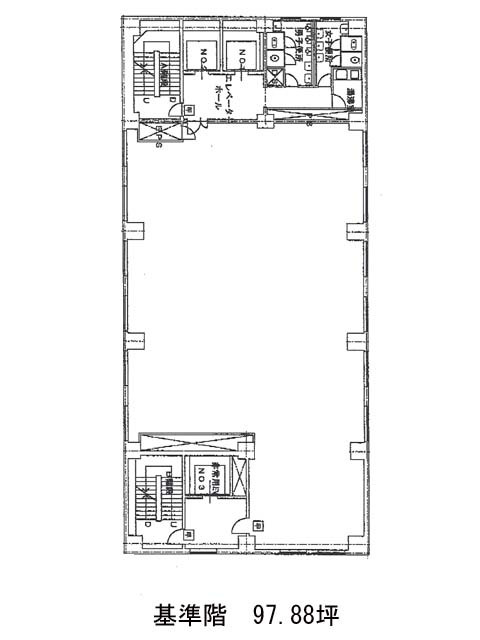
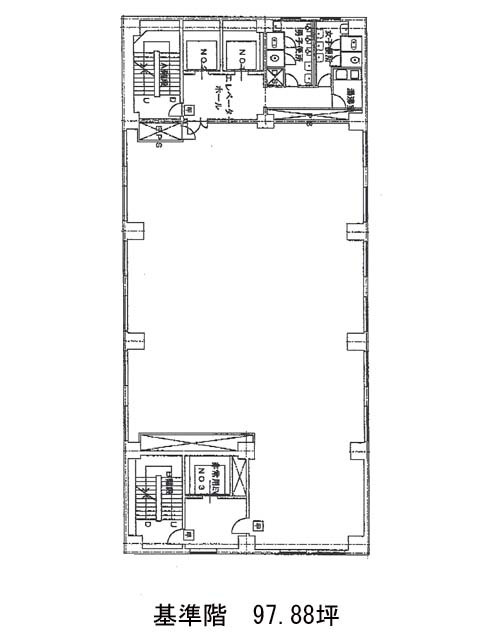
| 10 | 97.88坪 | − | − | 募集終了 | − | − | − | ||
| 11 | 97.88坪 | − | − | 募集終了 | − | − | − | ||
| 12 | 97.88坪 | − | − | 募集終了 | − | − | − | ||
| 13 | 97.88坪 | − | − | 募集終了 | − | − | − | ||
| 14 | 97.88坪 | − | − | 募集終了 | − | − | − |


