サンエスマンションの貸事務所・賃貸オフィス情報
サンエスマンションの貸事務所・賃貸オフィス情報
サンエスマンション
- エレベーター
- 旧耐震基準
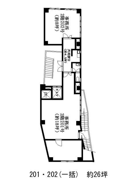
サンエスマンションの空室フロアリスト
| 階数 | 面積 | 賃料+共益費 | 保証金 | 入居時期 | 更新料 | 償却費 | 礼金 | 検討 | 平面図 | 詳細 |
|---|---|---|---|---|---|---|---|---|---|---|
| 2 | 26.00坪 |
330,044円12,694円/坪
|
112万円
|
即 | 新1ケ月 | なし | 2ケ月 |
サンエスマンションの物件情報
サンエスマンション(品川区東五反田)は高輪台駅徒歩4分、五反田駅徒歩7分、品川駅徒歩14分の賃貸オフィスです。
サンエスマンションのアクセス
サンエスマンションの条件に近い物件
サンエスマンションの募集終了区画
| 階数 | 面積 | 賃料+共益費 | 保証金 | 入居時期 | 更新料 | 償却費 | 礼金 | 平面図 | 詳細 |
|---|---|---|---|---|---|---|---|---|---|
| 1 | 17.00坪 | − | − | 募集終了 | − | − | − | ||
| 2 | 18.00坪 | − | − | 募集終了 | − | − | − |


