品川シーサイドパークタワーの貸事務所・賃貸オフィス情報
品川シーサイドパークタワーの貸事務所・賃貸オフィス情報
品川シーサイドパークタワー
- 物件番号
- 765-00068
- 所在地
- 東京都品川区東品川4-12-4
- 竣工
- 2003年7月
- 規模
- 地上23階/地下2階
- エレベーター
- セントラル
- 駐車場
- 新耐震基準
品川シーサイドパークタワーの空室フロアリスト
| 階数 | 面積 | 賃料+共益費 | 保証金 | 入居時期 | 更新料 | 償却費 | 礼金 | 検討 | 平面図 | 詳細 |
|---|---|---|---|---|---|---|---|---|---|---|
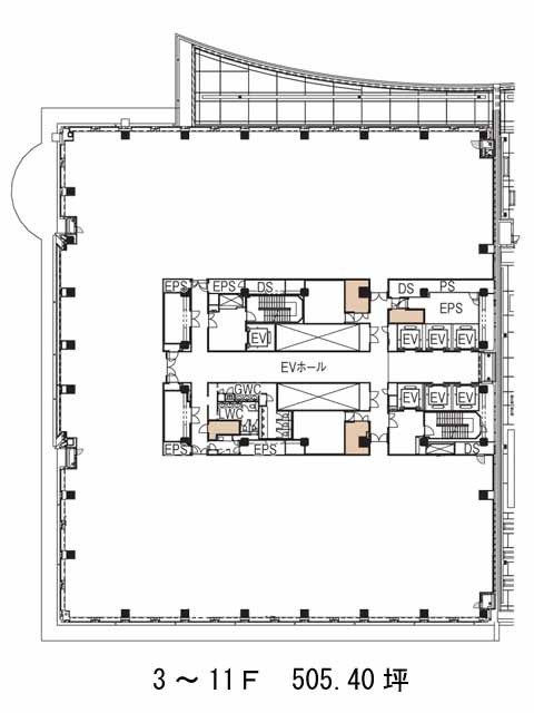
| 3 | 505.40坪 |
応相談応相談
|
応相談
|
2027年1月上旬 | なし | なし | なし | |||
| 4 | 505.40坪 |
応相談応相談
|
応相談
|
2026年10月上旬 | なし | なし | なし | |||
| 5 | 505.40坪 |
応相談応相談
|
応相談
|
2026年10月上旬 | なし | なし | なし | |||
| 6 | 505.40坪 |
応相談応相談
|
応相談
|
2027年1月上旬 | なし | なし | なし |
品川シーサイドパークタワーの物件情報
品川シーサイドパークタワー(品川区東品川)は品川シーサイド駅徒歩3分、青物横丁駅徒歩11分、鮫洲駅徒歩14分の賃貸オフィスです。
品川シーサイドパークタワーのアクセス
品川シーサイドパークタワーの条件に近い物件
品川シーサイドパークタワーの募集終了区画
| 階数 | 面積 | 賃料+共益費 | 保証金 | 入居時期 | 更新料 | 償却費 | 礼金 | 平面図 | 詳細 |
|---|---|---|---|---|---|---|---|---|---|
| 1 | 82.84坪 | − | − | 募集終了 | − | − | − | ||
| 7 | 505.40坪 | − | − | 募集終了 | − | − | − | ||
| 7 | 89.90坪 | − | − | 募集終了 | − | − | − | ||
| 7 | 166.91坪 | − | − | 募集終了 | − | − | − | ||
| 7 | 151.77坪 | − | − | 募集終了 | − | − | − | ||
| 8 | 505.40坪 | − | − | 募集終了 | − | − | − | ||
| 9 | 505.40坪 | − | − | 募集終了 | − | − | − | ||
| 9 | 353.63坪 | − | − | 募集終了 | − | − | − | ||
| 9 | 166.19坪 | − | − | 募集終了 | − | − | − | ||
| 9 | 91.24坪 | − | − | 募集終了 | − | − | − | ||
| 9 | 151.77坪 | − | − | 募集終了 | − | − | − | ||
| 9 | 96.20坪 | − | − | 募集終了 | − | − | − | ||
| 10 | 505.40坪 | − | − | 募集終了 | − | − | − | ||
| 11 | 505.40坪 | − | − | 募集終了 | − | − | − | ||
| 11 | 257.43坪 | − | − | 募集終了 | − | − | − | ||
| 11 | 247.97坪 | − | − | 募集終了 | − | − | − | ||
| 11 | 96.26坪 | − | − | 募集終了 | − | − | − | ||
| 12 | 505.40坪 | − | − | 募集終了 | − | − | − | ||
| 13 | 505.40坪 | − | − | 募集終了 | − | − | − | ||
| 19 | 292.21坪 | − | − | 募集終了 | − | − | − | ||
| 20 | 296.87坪 | − | − | 募集終了 | − | − | − | ||
| 21 | 296.87坪 | − | − | 募集終了 | − | − | − | ||
| 22 | 296.87坪 | − | − | 募集終了 | − | − | − | ||
| 23 | 232.57坪 | − | − | 募集終了 | − | − | − |


