浅草橋・蔵前・浅草の貸事務所・賃貸オフィス
- 物件番号
- 559-00063
- 所在地
- 東京都台東区浅草橋2-20-11
- 物件番号
- 559-00063
- 竣工年
- 確認中
- 所在地
- 東京都台東区浅草橋2-20-11
- 竣工年
- 確認中
- 規模
- 地上7階
| 階数 | 面積 | 賃料+共益費 | 保証金 | 入居時期 | 検討 | 図面 | 詳細 |
|---|---|---|---|---|---|---|---|
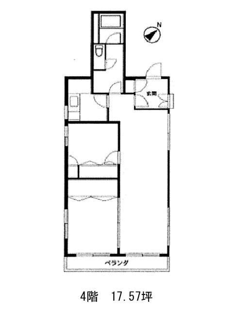
| 3 | 34.00坪 |
411,400円12,100円/坪
|
224万円
|
即 |
空室フロアリスト
| 階数 | 面積 | 賃料+共益費 | 保証金 | 入居時期 | 検討 | 図面 | 詳細 |
|---|---|---|---|---|---|---|---|
| 3 | 34.00坪 |
411,400円12,100円/坪
|
224万円
|
即 |
- 物件番号
- 556-00069
- 所在地
- 東京都台東区西浅草3-24-5
- 物件番号
- 556-00069
- 竣工年
- 2014年6月
- 所在地
- 東京都台東区西浅草3-24-5
- 竣工年
- 2014年6月
- 規模
- 地上14階
| 階数 | 面積 | 賃料+共益費 | 保証金 | 入居時期 | 検討 | 図面 | 詳細 |
|---|---|---|---|---|---|---|---|
| 13 | 16.41坪 |
328,202円20,000円/坪
|
29万円
|
即 |
空室フロアリスト
| 階数 | 面積 | 賃料+共益費 | 保証金 | 入居時期 | 検討 | 図面 | 詳細 |
|---|---|---|---|---|---|---|---|
| 13 | 16.41坪 |
328,202円20,000円/坪
|
29万円
|
即 |
- 物件番号
- 559-00045
- 所在地
- 東京都台東区浅草橋3-25-5
- 物件番号
- 559-00045
- 竣工年
- 1989年10月
- 所在地
- 東京都台東区浅草橋3-25-5
- 竣工年
- 1989年10月
- 規模
- 地上9階/地下1階
| 階数 | 面積 | 賃料+共益費 | 保証金 | 入居時期 | 検討 | 図面 | 詳細 |
|---|---|---|---|---|---|---|---|
| 7 | 28.17坪 |
495,792円17,600円/坪
|
236万円
|
2026年2月中旬 |
空室フロアリスト
| 階数 | 面積 | 賃料+共益費 | 保証金 | 入居時期 | 検討 | 図面 | 詳細 |
|---|---|---|---|---|---|---|---|
| 7 | 28.17坪 |
495,792円17,600円/坪
|
236万円
|
2026年2月中旬 |
- 物件番号
- 570-00001
- 所在地
- 東京都台東区柳橋2-19-6
- 物件番号
- 570-00001
- 竣工年
- 1987年5月
- 所在地
- 東京都台東区柳橋2-19-6
- 竣工年
- 1987年5月
- 規模
- 地上12階/地下1階
| 階数 | 面積 | 賃料+共益費 | 保証金 | 入居時期 | 検討 | 図面 | 詳細 |
|---|---|---|---|---|---|---|---|
| 1 | 246.06坪 |
応相談応相談
|
応相談
|
即 |
空室フロアリスト
| 階数 | 面積 | 賃料+共益費 | 保証金 | 入居時期 | 検討 | 図面 | 詳細 |
|---|---|---|---|---|---|---|---|
| 1 | 246.06坪 |
応相談応相談
|
応相談
|
即 |
- 物件番号
- 558-00188
- 所在地
- 東京都台東区浅草2-34-10
- 物件番号
- 558-00188
- 竣工年
- 2005年1月
- 所在地
- 東京都台東区浅草2-34-10
- 竣工年
- 2005年1月
- 規模
- 地上11階
| 階数 | 面積 | 賃料+共益費 | 保証金 | 入居時期 | 検討 | 図面 | 詳細 |
|---|---|---|---|---|---|---|---|
| 3 | 16.19坪 |
356,180円22,000円/坪
|
応相談
|
2026年1月上旬 |
空室フロアリスト
| 階数 | 面積 | 賃料+共益費 | 保証金 | 入居時期 | 検討 | 図面 | 詳細 |
|---|---|---|---|---|---|---|---|
| 3 | 16.19坪 |
356,180円22,000円/坪
|
応相談
|
2026年1月上旬 |
- 物件番号
- 559-00187
- 所在地
- 東京都台東区浅草橋1-34-10
- 物件番号
- 559-00187
- 竣工年
- 1988年6月
- 所在地
- 東京都台東区浅草橋1-34-10
- 竣工年
- 1988年6月
- 規模
- 地上8階
| 階数 | 面積 | 賃料+共益費 | 保証金 | 入居時期 | 検討 | 図面 | 詳細 |
|---|---|---|---|---|---|---|---|
| 2 | 29.68坪 |
応相談応相談
|
応相談
|
即 |
空室フロアリスト
| 階数 | 面積 | 賃料+共益費 | 保証金 | 入居時期 | 検討 | 図面 | 詳細 |
|---|---|---|---|---|---|---|---|
| 2 | 29.68坪 |
応相談応相談
|
応相談
|
即 |
- 物件番号
- 559-00160
- 所在地
- 東京都台東区浅草橋3-22-2
- 物件番号
- 559-00160
- 竣工年
- 1986年10月
- 所在地
- 東京都台東区浅草橋3-22-2
- 竣工年
- 1986年10月
- 規模
- 地上3階
| 階数 | 面積 | 賃料+共益費 | 保証金 | 入居時期 | 検討 | 図面 | 詳細 |
|---|---|---|---|---|---|---|---|
| 1-2F | 31.46坪 |
385,000円12,238円/坪
|
70万円
|
相談 |
空室フロアリスト
| 階数 | 面積 | 賃料+共益費 | 保証金 | 入居時期 | 検討 | 図面 | 詳細 |
|---|---|---|---|---|---|---|---|
| 1-2F | 31.46坪 |
385,000円12,238円/坪
|
70万円
|
相談 |
- 物件番号
- 548-00016
- 所在地
- 東京都台東区寿3-9-6
- 物件番号
- 548-00016
- 竣工年
- 1988年4月
- 所在地
- 東京都台東区寿3-9-6
- 竣工年
- 1988年4月
- 規模
- 地上11階
| 階数 | 面積 | 賃料+共益費 | 保証金 | 入居時期 | 検討 | 図面 | 詳細 |
|---|---|---|---|---|---|---|---|
| 3 | 24.92坪 |
301,532円12,100円/坪
|
149万円
|
即 |
空室フロアリスト
| 階数 | 面積 | 賃料+共益費 | 保証金 | 入居時期 | 検討 | 図面 | 詳細 |
|---|---|---|---|---|---|---|---|
| 3 | 24.92坪 |
301,532円12,100円/坪
|
149万円
|
即 |
- 物件番号
- 559-00030
- 所在地
- 東京都台東区浅草橋3-20-15
- 物件番号
- 559-00030
- 竣工年
- 1989年7月
- 所在地
- 東京都台東区浅草橋3-20-15
- 竣工年
- 1989年7月
- 規模
- 地上9階/地下1階
| 階数 | 面積 | 賃料+共益費 | 保証金 | 入居時期 | 検討 | 図面 | 詳細 |
|---|---|---|---|---|---|---|---|
| 9 | 77.41坪 |
応相談応相談
|
応相談
|
2026年1月中旬 |
空室フロアリスト
| 階数 | 面積 | 賃料+共益費 | 保証金 | 入居時期 | 検討 | 図面 | 詳細 |
|---|---|---|---|---|---|---|---|
| 9 | 77.41坪 |
応相談応相談
|
応相談
|
2026年1月中旬 |
- 物件番号
- 550-00005
- 所在地
- 東京都台東区小島2-14-5
- 物件番号
- 550-00005
- 竣工年
- 1972年1月
- 所在地
- 東京都台東区小島2-14-5
- 竣工年
- 1972年1月
- 規模
- 地上8階/地下1階
| 階数 | 面積 | 賃料+共益費 | 保証金 | 入居時期 | 検討 | 図面 | 詳細 |
|---|---|---|---|---|---|---|---|
| 7 | 17.86坪 |
306,477円17,160円/坪
|
46万円
|
即 |
空室フロアリスト
| 階数 | 面積 | 賃料+共益費 | 保証金 | 入居時期 | 検討 | 図面 | 詳細 |
|---|---|---|---|---|---|---|---|
| 7 | 17.86坪 |
306,477円17,160円/坪
|
46万円
|
即 |
- 物件番号
- 559-00023
- 所在地
- 東京都台東区浅草橋1-24-3
- 物件番号
- 559-00023
- 竣工年
- 1986年3月
- 所在地
- 東京都台東区浅草橋1-24-3
- 竣工年
- 1986年3月
- 規模
- 地上8階
| 階数 | 面積 | 賃料+共益費 | 保証金 | 入居時期 | 検討 | 図面 | 詳細 |
|---|---|---|---|---|---|---|---|
| 6 | 39.82坪 |
657,030円16,500円/坪
|
477万円
|
2025年12月中旬 |
空室フロアリスト
| 階数 | 面積 | 賃料+共益費 | 保証金 | 入居時期 | 検討 | 図面 | 詳細 |
|---|---|---|---|---|---|---|---|
| 6 | 39.82坪 |
657,030円16,500円/坪
|
477万円
|
2025年12月中旬 |
- 物件番号
- 570-00155
- 所在地
- 東京都台東区柳橋2-13-10
- 物件番号
- 570-00155
- 竣工年
- 1977年7月
- 所在地
- 東京都台東区柳橋2-13-10
- 竣工年
- 1977年7月
- 規模
- 地上3階
| 階数 | 面積 | 賃料+共益費 | 保証金 | 入居時期 | 検討 | 図面 | 詳細 |
|---|---|---|---|---|---|---|---|
| 3 | 29.89坪 |
242,000円8,097円/坪
|
88万円
|
相談 |
空室フロアリスト
| 階数 | 面積 | 賃料+共益費 | 保証金 | 入居時期 | 検討 | 図面 | 詳細 |
|---|---|---|---|---|---|---|---|
| 3 | 29.89坪 |
242,000円8,097円/坪
|
88万円
|
相談 |
- 物件番号
- 559-00147
- 所在地
- 東京都台東区浅草橋2-27-11
- 物件番号
- 559-00147
- 竣工年
- 1991年1月
- 所在地
- 東京都台東区浅草橋2-27-11
- 竣工年
- 1991年1月
- 規模
- 地上4階
| 階数 | 面積 | 賃料+共益費 | 保証金 | 入居時期 | 検討 | 図面 | 詳細 |
|---|---|---|---|---|---|---|---|
| 3 | 17.10坪 |
159,500円9,328円/坪
|
54万円
|
相談 |
空室フロアリスト
| 階数 | 面積 | 賃料+共益費 | 保証金 | 入居時期 | 検討 | 図面 | 詳細 |
|---|---|---|---|---|---|---|---|
| 3 | 17.10坪 |
159,500円9,328円/坪
|
54万円
|
相談 |
- 物件番号
- 558-00196
- 所在地
- 東京都台東区浅草6-28-8
- 物件番号
- 558-00196
- 竣工年
- 1980年5月
- 最寄駅
- 浅草駅 11分
- 所在地
- 東京都台東区浅草6-28-8
- 竣工年
- 1980年5月
- 規模
- 地上4階
| 階数 | 面積 | 賃料+共益費 | 保証金 | 入居時期 | 検討 | 図面 | 詳細 |
|---|---|---|---|---|---|---|---|
| 1 | 19.51坪 |
応相談応相談
|
81万円
|
即 |
空室フロアリスト
| 階数 | 面積 | 賃料+共益費 | 保証金 | 入居時期 | 検討 | 図面 | 詳細 |
|---|---|---|---|---|---|---|---|
| 1 | 19.51坪 |
応相談応相談
|
81万円
|
即 |
- 物件番号
- 555-00014
- 所在地
- 東京都台東区清川2-25-13
- 物件番号
- 555-00014
- 竣工年
- 1972年11月
- 所在地
- 東京都台東区清川2-25-13
- 竣工年
- 1972年11月
- 規模
| 階数 | 面積 | 賃料+共益費 | 保証金 | 入居時期 | 検討 | 図面 | 詳細 |
|---|---|---|---|---|---|---|---|
| 1-2F | 51.88坪 |
418,000円8,058円/坪
|
105万円
|
相談 |
空室フロアリスト
| 階数 | 面積 | 賃料+共益費 | 保証金 | 入居時期 | 検討 | 図面 | 詳細 |
|---|---|---|---|---|---|---|---|
| 1-2F | 51.88坪 |
418,000円8,058円/坪
|
105万円
|
相談 |
- 物件番号
- 559-00369
- 所在地
- 東京都台東区浅草橋5-19-5
- 物件番号
- 559-00369
- 竣工年
- 2020年10月
- 所在地
- 東京都台東区浅草橋5-19-5
- 竣工年
- 2020年10月
- 規模
- 地上5階
| 階数 | 面積 | 賃料+共益費 | 保証金 | 入居時期 | 検討 | 図面 | 詳細 |
|---|---|---|---|---|---|---|---|
| 4 | 42.49坪 |
1,402,170円33,000円/坪
|
892万円
|
相談 |
空室フロアリスト
| 階数 | 面積 | 賃料+共益費 | 保証金 | 入居時期 | 検討 | 図面 | 詳細 |
|---|---|---|---|---|---|---|---|
| 4 | 42.49坪 |
1,402,170円33,000円/坪
|
892万円
|
相談 |
- 物件番号
- 559-00355
- 所在地
- 東京都台東区浅草橋3-2-10
- 物件番号
- 559-00355
- 竣工年
- 2019年4月
- 所在地
- 東京都台東区浅草橋3-2-10
- 竣工年
- 2019年4月
- 規模
- 地上5階
| 階数 | 面積 | 賃料+共益費 | 保証金 | 入居時期 | 検討 | 図面 | 詳細 |
|---|---|---|---|---|---|---|---|
| 1 | 20.41坪 |
359,216円17,600円/坪
|
171万円
|
即 | |||
| 2 | 20.41坪 |
314,314円15,400円/坪
|
146万円
|
即 | |||
| 3 | 20.41坪 |
314,314円15,400円/坪
|
146万円
|
即 |
空室フロアリスト
| 階数 | 面積 | 賃料+共益費 | 保証金 | 入居時期 | 検討 | 図面 | 詳細 |
|---|---|---|---|---|---|---|---|
| 1 | 20.41坪 |
359,216円17,600円/坪
|
171万円
|
即 | |||
| 2 | 20.41坪 |
314,314円15,400円/坪
|
146万円
|
即 | |||
| 3 | 20.41坪 |
314,314円15,400円/坪
|
146万円
|
即 |
- 物件番号
- 559-00364
- 所在地
- 東京都台東区浅草橋1-4-4
- 物件番号
- 559-00364
- 竣工年
- 1982年1月
- 所在地
- 東京都台東区浅草橋1-4-4
- 竣工年
- 1982年1月
- 規模
- 地上5階
| 階数 | 面積 | 賃料+共益費 | 保証金 | 入居時期 | 検討 | 図面 | 詳細 |
|---|---|---|---|---|---|---|---|
| 4 | 26.90坪 |
230,000円8,550円/坪
|
83万円
|
相談 |
空室フロアリスト
| 階数 | 面積 | 賃料+共益費 | 保証金 | 入居時期 | 検討 | 図面 | 詳細 |
|---|---|---|---|---|---|---|---|
| 4 | 26.90坪 |
230,000円8,550円/坪
|
83万円
|
相談 |
- 物件番号
- 559-00028
- 所在地
- 東京都台東区浅草橋1-9-16
- 物件番号
- 559-00028
- 竣工年
- 1992年8月
- 所在地
- 東京都台東区浅草橋1-9-16
- 竣工年
- 1992年8月
- 規模
- 地上10階/地下2階
| 階数 | 面積 | 賃料+共益費 | 保証金 | 入居時期 | 検討 | 図面 | 詳細 |
|---|---|---|---|---|---|---|---|
| 7 | 56.18坪 |
応相談応相談
|
応相談
|
2026年2月上旬 |
空室フロアリスト
| 階数 | 面積 | 賃料+共益費 | 保証金 | 入居時期 | 検討 | 図面 | 詳細 |
|---|---|---|---|---|---|---|---|
| 7 | 56.18坪 |
応相談応相談
|
応相談
|
2026年2月上旬 |
- 物件番号
- 567-00016
- 所在地
- 東京都台東区日本堤1-6-11
- 物件番号
- 567-00016
- 竣工年
- 1984年4月
- 所在地
- 東京都台東区日本堤1-6-11
- 竣工年
- 1984年4月
- 規模
- 地上4階
| 階数 | 面積 | 賃料+共益費 | 保証金 | 入居時期 | 検討 | 図面 | 詳細 |
|---|---|---|---|---|---|---|---|
| 2 | 53.68坪 |
550,000円10,246円/坪
|
300万円
|
即 |
空室フロアリスト
| 階数 | 面積 | 賃料+共益費 | 保証金 | 入居時期 | 検討 | 図面 | 詳細 |
|---|---|---|---|---|---|---|---|
| 2 | 53.68坪 |
550,000円10,246円/坪
|
300万円
|
即 |
- 物件番号
- 559-00371
- 所在地
- 東京都台東区浅草橋3-11-1
- 物件番号
- 559-00371
- 竣工年
- 1984年11月
- 所在地
- 東京都台東区浅草橋3-11-1
- 竣工年
- 1984年11月
- 規模
- 地上4階
| 階数 | 面積 | 賃料+共益費 | 保証金 | 入居時期 | 検討 | 図面 | 詳細 |
|---|---|---|---|---|---|---|---|
| 3 | 18.02坪 |
198,000円10,987円/坪
|
59万円
|
即 |
空室フロアリスト
| 階数 | 面積 | 賃料+共益費 | 保証金 | 入居時期 | 検討 | 図面 | 詳細 |
|---|---|---|---|---|---|---|---|
| 3 | 18.02坪 |
198,000円10,987円/坪
|
59万円
|
即 |
- 物件番号
- 560-00080
- 所在地
- 東京都台東区蔵前4-17-10
- 物件番号
- 560-00080
- 竣工年
- 2001年9月
- 所在地
- 東京都台東区蔵前4-17-10
- 竣工年
- 2001年9月
- 規模
| 階数 | 面積 | 賃料+共益費 | 保証金 | 入居時期 | 検討 | 図面 | 詳細 |
|---|---|---|---|---|---|---|---|
| 2 | 30.44坪 |
310,000円10,184円/坪
|
169万円
|
即 |
空室フロアリスト
| 階数 | 面積 | 賃料+共益費 | 保証金 | 入居時期 | 検討 | 図面 | 詳細 |
|---|---|---|---|---|---|---|---|
| 2 | 30.44坪 |
310,000円10,184円/坪
|
169万円
|
即 |
- 物件番号
- 570-00115
- 所在地
- 東京都台東区柳橋2-22-12
- 物件番号
- 570-00115
- 竣工年
- 1987年7月
- 所在地
- 東京都台東区柳橋2-22-12
- 竣工年
- 1987年7月
- 規模
- 地上5階/地下1階
| 階数 | 面積 | 賃料+共益費 | 保証金 | 入居時期 | 検討 | 図面 | 詳細 |
|---|---|---|---|---|---|---|---|
| 4 | 15.80坪 |
165,000円10,443円/坪
|
60万円
|
相談 |
空室フロアリスト
| 階数 | 面積 | 賃料+共益費 | 保証金 | 入居時期 | 検討 | 図面 | 詳細 |
|---|---|---|---|---|---|---|---|
| 4 | 15.80坪 |
165,000円10,443円/坪
|
60万円
|
相談 |
- 物件番号
- 560-00027
- 所在地
- 東京都台東区蔵前3-15-7
- 物件番号
- 560-00027
- 竣工年
- 1988年11月
- 所在地
- 東京都台東区蔵前3-15-7
- 竣工年
- 1988年11月
- 規模
- 地上5階/地下1階
| 階数 | 面積 | 賃料+共益費 | 保証金 | 入居時期 | 検討 | 図面 | 詳細 |
|---|---|---|---|---|---|---|---|
| 3 | 68.79坪 |
1,210,704円17,600円/坪
|
1100万円
|
2025年12月上旬 | |||
| 4 | 69.09坪 |
1,215,984円17,600円/坪
|
1105万円
|
2025年12月上旬 |
空室フロアリスト
| 階数 | 面積 | 賃料+共益費 | 保証金 | 入居時期 | 検討 | 図面 | 詳細 |
|---|---|---|---|---|---|---|---|
| 3 | 68.79坪 |
1,210,704円17,600円/坪
|
1100万円
|
2025年12月上旬 | |||
| 4 | 69.09坪 |
1,215,984円17,600円/坪
|
1105万円
|
2025年12月上旬 |
- 物件番号
- 558-00195
- 所在地
- 東京都台東区浅草2-33-3
- 物件番号
- 558-00195
- 竣工年
- 1992年2月
- 所在地
- 東京都台東区浅草2-33-3
- 竣工年
- 1992年2月
- 規模
- 地上10階
| 階数 | 面積 | 賃料+共益費 | 保証金 | 入居時期 | 検討 | 図面 | 詳細 |
|---|---|---|---|---|---|---|---|
| 1-2 | 33.84坪 |
1,116,720円33,000円/坪
|
応相談
|
2026年4月上旬 | |||
| 1 | 16.49坪 |
544,168円33,000円/坪
|
応相談
|
2026年4月上旬 | |||
| 2 | 17.35坪 |
572,550円33,000円/坪
|
応相談
|
2026年4月上旬 |
空室フロアリスト
| 階数 | 面積 | 賃料+共益費 | 保証金 | 入居時期 | 検討 | 図面 | 詳細 |
|---|---|---|---|---|---|---|---|
| 1-2 | 33.84坪 |
1,116,720円33,000円/坪
|
応相談
|
2026年4月上旬 | |||
| 1 | 16.49坪 |
544,168円33,000円/坪
|
応相談
|
2026年4月上旬 | |||
| 2 | 17.35坪 |
572,550円33,000円/坪
|
応相談
|
2026年4月上旬 |
- 物件番号
- 570-00096
- 所在地
- 東京都台東区柳橋1-20-4
- 物件番号
- 570-00096
- 竣工年
- 1976年9月
- 所在地
- 東京都台東区柳橋1-20-4
- 竣工年
- 1976年9月
- 規模
- 地上11階/地下1階
| 階数 | 面積 | 賃料+共益費 | 保証金 | 入居時期 | 検討 | 図面 | 詳細 |
|---|---|---|---|---|---|---|---|
| 地下1 | 52.30坪 |
978,010円18,700円/坪
|
960万円
|
相談 | |||
| 11 | 52.27坪 |
574,970円11,000円/坪
|
418万円
|
相談 |
空室フロアリスト
| 階数 | 面積 | 賃料+共益費 | 保証金 | 入居時期 | 検討 | 図面 | 詳細 |
|---|---|---|---|---|---|---|---|
| 地下1 | 52.30坪 |
978,010円18,700円/坪
|
960万円
|
相談 | |||
| 11 | 52.27坪 |
574,970円11,000円/坪
|
418万円
|
相談 |
- 物件番号
- 559-00181
- 所在地
- 東京都台東区浅草橋4-10-2
- 物件番号
- 559-00181
- 竣工年
- 1989年4月
- 所在地
- 東京都台東区浅草橋4-10-2
- 竣工年
- 1989年4月
- 規模
- 地上5階
| 階数 | 面積 | 賃料+共益費 | 保証金 | 入居時期 | 検討 | 図面 | 詳細 |
|---|---|---|---|---|---|---|---|
| 3 | 17.30坪 |
154,000円8,902円/坪
|
56万円
|
即 |
空室フロアリスト
| 階数 | 面積 | 賃料+共益費 | 保証金 | 入居時期 | 検討 | 図面 | 詳細 |
|---|---|---|---|---|---|---|---|
| 3 | 17.30坪 |
154,000円8,902円/坪
|
56万円
|
即 |
- 物件番号
- 571-00078
- 所在地
- 東京都台東区雷門2-19-16
- 物件番号
- 571-00078
- 竣工年
- 2025年6月
- 所在地
- 東京都台東区雷門2-19-16
- 竣工年
- 2025年6月
- 規模
- 地上9階
| 階数 | 面積 | 賃料+共益費 | 保証金 | 入居時期 | 検討 | 図面 | 詳細 |
|---|---|---|---|---|---|---|---|
| 4 | 44.14坪 |
応相談応相談
|
応相談
|
即 | |||
| 5 | 47.64坪 |
応相談応相談
|
応相談
|
即 | |||
| 6 | 47.64坪 |
応相談応相談
|
応相談
|
即 | |||
| 7 | 47.64坪 |
応相談応相談
|
応相談
|
即 | |||
| 8 | 47.64坪 |
応相談応相談
|
応相談
|
即 | |||
| 9 | 47.64坪 |
応相談応相談
|
応相談
|
即 |
空室フロアリスト
| 階数 | 面積 | 賃料+共益費 | 保証金 | 入居時期 | 検討 | 図面 | 詳細 |
|---|---|---|---|---|---|---|---|
| 4 | 44.14坪 |
応相談応相談
|
応相談
|
即 | |||
| 5 | 47.64坪 |
応相談応相談
|
応相談
|
即 | |||
| 6 | 47.64坪 |
応相談応相談
|
応相談
|
即 | |||
| 7 | 47.64坪 |
応相談応相談
|
応相談
|
即 | |||
| 8 | 47.64坪 |
応相談応相談
|
応相談
|
即 | |||
| 9 | 47.64坪 |
応相談応相談
|
応相談
|
即 |
- 物件番号
- 559-00010
- 所在地
- 東京都台東区浅草橋1-10-7
- 物件番号
- 559-00010
- 竣工年
- 1989年8月
- 所在地
- 東京都台東区浅草橋1-10-7
- 竣工年
- 1989年8月
- 規模
- 地上5階/地下1階
| 階数 | 面積 | 賃料+共益費 | 保証金 | 入居時期 | 検討 | 図面 | 詳細 |
|---|---|---|---|---|---|---|---|
| 4 | 22.85坪 |
440,000円19,256円/坪
|
234万円
|
即 | |||
| 5 | 21.28坪 |
386,001円18,140円/坪
|
102万円
|
即 |
空室フロアリスト
| 階数 | 面積 | 賃料+共益費 | 保証金 | 入居時期 | 検討 | 図面 | 詳細 |
|---|---|---|---|---|---|---|---|
| 4 | 22.85坪 |
440,000円19,256円/坪
|
234万円
|
即 | |||
| 5 | 21.28坪 |
386,001円18,140円/坪
|
102万円
|
即 |
- 物件番号
- 559-00236
- 所在地
- 東京都台東区浅草橋3-33-8
- 物件番号
- 559-00236
- 竣工年
- 1988年1月
- 所在地
- 東京都台東区浅草橋3-33-8
- 竣工年
- 1988年1月
- 規模
- 地上7階/地下1階
| 階数 | 面積 | 賃料+共益費 | 保証金 | 入居時期 | 検討 | 図面 | 詳細 |
|---|---|---|---|---|---|---|---|
| 2 | 15.80坪 |
139,700円8,842円/坪
|
48万円
|
即 |
空室フロアリスト
| 階数 | 面積 | 賃料+共益費 | 保証金 | 入居時期 | 検討 | 図面 | 詳細 |
|---|---|---|---|---|---|---|---|
| 2 | 15.80坪 |
139,700円8,842円/坪
|
48万円
|
即 |


